Drucken Alle Bilder Nur Hauptbild Keine Bilder Fenster schließen
Oesterle GmbH Immobilien

Oesterle Immobilien

Oesterle Immobilien GmbH

Stuttgarter Straße 83
70469 Stuttgart

Telefon: +49 711 / 220 594 47
Fax +49 711 / 907 127 99
stuttgart@oesterle-immobilien.de

Flexible Gewerbefläche (200-800 m²) in 1A-Lage - vielseitig nutzbar & frisch renoviert

Objektdaten

KennungMG0129_1
Lage88316
Baujahr1900
Gesamtfläche800.00 m²
Provision für Mieter1keine

Energieangaben

Baujahr1900

Objektbeschreibung

Zur Vermietung stehen Gewerbeflächen mit vielseitigen Nutzungsmöglichkeiten als Einzelhandel, Gastronomie, Büro, Praxis, Ausstellung, Events .... und vieles mehr.

Die Gewerbeimmobilie besticht durch die absolute 1A-Lage in der Fußgängerzone, große Schaufensterflächen und großen, zusammenhängenden Flächen, die als großer Raum genutzt werden oder auch flexibel nach den Vorstellungen des Mieters unterteilt werden können.

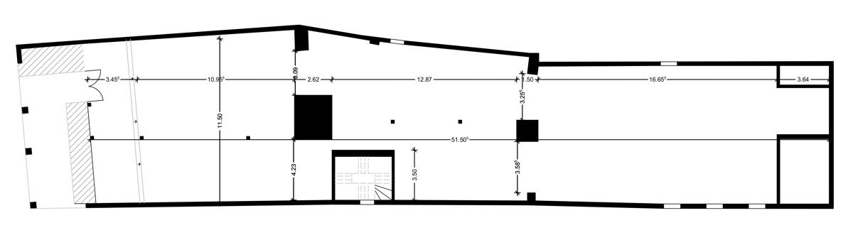
Die Flächen können frei gewählt werden zwischen 200 m² und ca. 550 m² im Erdgeschoss und ca. 250 m² im 1. Obergeschoss, also gesamt bis zu 800 m². Die Fläche im 1. Obergeschoss kann entweder über ein separates Treppenhaus oder direkt aus den Gewerbeflächen im Erdgeschoss erschlossen werden.

Aktuell findet der Rückbau des Bestands statt (Zustand Fotos). Die Vermieter sind bereit, bei einer entsprechenden Laufzeit des Mietvertrags die Flächen nach den Vorstellungen des Mieters umzubauen und zu sanieren.

______________________________________________________________________________________________

Den 360°-Rundgang können Sie über den QR-Code bei den Bildern oder über diesen Link anschauen: https://tour.giraffe360.com/c6e33081c8194bf18b6967d9ff058b4d

Lage

Die angebotene Gewerbefläche (Einzelhandel/Gastro/Dienstleistung) befindet sich in absoluter 1A-Lage im Herzen der historischen Altstadt von Isny im Allgäu. Direkt in der stark frequentierten Fußgängerzone gelegen, profitiert die Immobilie von einer hervorragenden Sichtbarkeit und einer hohen Passantenfrequenz. Der Standort ist geprägt von attraktiven Einzelhandelsgeschäften, Gastronomie sowie vielfältigen Dienstleistungsangeboten, die eine lebendige Einkaufsatmosphäre schaffen.

Isny im Allgäu verfügt über ein Einzugsgebiet von rund 30.000 Personen, das die Stadt als zentralen Versorgungsstandort der Region etabliert. Neben der Funktion als Einkaufs- und Versorgungszentrum zeichnet sich Isny durch seine hohe touristische Bedeutung aus. Als anerkannter Luftkurort am Rande des Allgäus zieht die Stadt jährlich zahlreiche Gäste aus dem In- und Ausland an. Die malerische Altstadt, ein breites Freizeitangebot sowie die Nähe zu beliebten Ausflugszielen wie dem Bodensee, den Allgäuer Alpen oder dem benachbarten Österreich sorgen für eine stetig wachsende Besucherzahl.

In Kombination aus lokaler Kaufkraft, regionalem Einzugsgebiet und touristischem Zustrom ergibt sich ein hochattraktiver Standort für Einzelhändler, Gastronomen oder Dienstleistern mit hervorragenden Umsatzpotenzialen.

1) Die o. g. Provision bezieht sich auf den angegebenen Kaufpreis und versteht sich inklusive der jeweils gesetzlich gültigen Mehrwertsteuer. Sie wird vom Käufer getragen und ist verdient und zahlbar an den Nachweis-/Vermittlungsmakler bei Kaufvertragsabschluss.
Alle Angaben nach Auskunft des Eigentümers.
Provisionshinweis: Für die genannten Angaben können wir keine Gewähr übernehmen, es handelt sich um Angaben des Verkäufers. Wir haben die Angaben nicht überprüft und keine Register eingesehen (z.B. Grundbuch, Baulastenverzeichnis). Daher beschränkt sich unsere Haftung auf g

© 2025 - Oesterle GmbH